Order by
Close Sorting
Share it
Close Filters
Properties
Information
Versions
  Love Share etc
Save it Share it Print it

758 East Attica industrial plot 34.000 sq.m for sale

 
Property ID
274
Area
Markopoulo Mesogaias
Property Type
Land
Sector
Industrial, Logistics
Building Factor
0.90
Building Coverage
40%
Size
34.000 sqm
Price
Call us

Property's Description

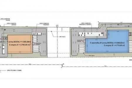
Markopoulo Attica, a plot of land 34,000 square meters in total in the industrial park of the area, for sale.

The plot has a facade on two paved roads, is buildable, and has a maximum cover of 40%.

The plot of land has very good dimensions with a facade of 100 meters and a depth of 340 square meters. It is located in a very nice spot with easy access.

The property can get build-in on or two buildings. There is an engineering study.

See more plots and find the one that suits the needs of your business by clicking to terraproperty.gr.

Property's Κey Features

Request Info
Φόρμα Επικοινωνίας Ακινήτου

View Also