Order by
Close Sorting
Share it
Close Filters
Properties
Information
Versions
  Love Share etc
 
 
 
 
 
Save it Share it Print it

758 East Attica, new building 376 sqm for sale

 
Property ID
437
Area
Saronikos/Kalivia Thorikou (Lagonisi)
Property Type
Building
Sector
Offices
Development Type
Independent building
Size
376 sqm
On Plot
173 τ.μ.
Price
Call us

Property's Description

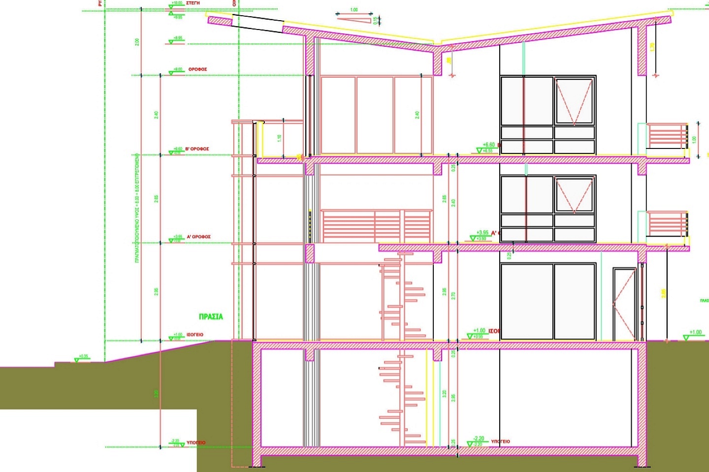
East Attica, in Kalyvia, a newly built corner building of 376 square meters, of excellent construction, for sale.

The building is located on a plot of 174 square meters, on a central spot of the area. It is of excellent construction and modern architecture.

The building comprises basement space, ground floor, mezzanine, and 1st floor. It features an elevator and a large lawn in the entrance, while its access is very good.

The property is ideal for exhibitions and offices.

See more commercial properties and find the one that suits the needs of your business by clicking to terraproperty.gr.

Property's Κey Features

  • Elevator
  • Very good access
Request Info
Φόρμα Επικοινωνίας Ακινήτου