Order by
Close Sorting
Share it
Close Filters
Properties
Information
Versions
  Love Share etc
Rented
 
 
 
 
 
 
 
 
 
Save it Share it Print it

758 Athens commercial building 3.800 sqm for rent

 
Property ID
128
Area
Athens
Property Type
Building
Sector
Mixed use
Development Type
Independent building
Floor
Semi basement, Ground floor, Mezzanine, 1st
Size
3.800 sqm
Price per month
Call us (Rented)

Property's Description

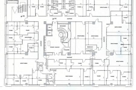
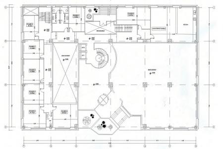
Athens, Greece, this office building with a total area of 2.800 square meters, consisting of 3 levels, for rent.

The basement, of 1.000 square meters with 20 parking spaces and auxiliary spaces. The ground floor of 1.150 square meters with 5 meters in height. It contains a large guest room, 2 elevators, wide staircase which communicates with the upper floors. The loft, where there are office spaces of 600 square meters. The 1st floor, of 1.190 square meters. The office space is fully renovated. It contains all modern benefits, natural lighting, structured cabling, air conditioning, autonomous heating, double glass panels, and toilets on every floor.

The property is located near National Road Athens - Lamia. It has very good access, near metro station and other means of transport. The building is suitable for companies that want office spaces and warehouses as well. Moreover, there is the possibility of renting the building separately.

See more commercial properties and find the one that suits the needs of your business by clicking to terraproperty.gr.

Property's Κey Features

  • Natural lighting
  • Office space
  • Air Conditioning
  • Ventilation System
  • Garage
  • Structured cabling
  • Elevator
  • False Ceiling
  • Near metro station
  • Very good access
Request Info
Φόρμα Επικοινωνίας Ακινήτου

View Also